

倘若您有什么疑問或是對我公司有任何
的意見和建議都可通過:
的意見和建議都可通過:
公司名稱: 鞏義市西村鎮華豐給排水材料廠
公司地址: 河南省鞏義市西村開發區
電話: 0371-64033589
手機: 18638168566,13683712868
13783416000(技術)
聯系人: 王先生,位女士
郵政編碼: 451200
E-MAIL: 1696257948@qq.com
網址:http://www.diqpd.cn/
網址:http://www.diqpd.cn/
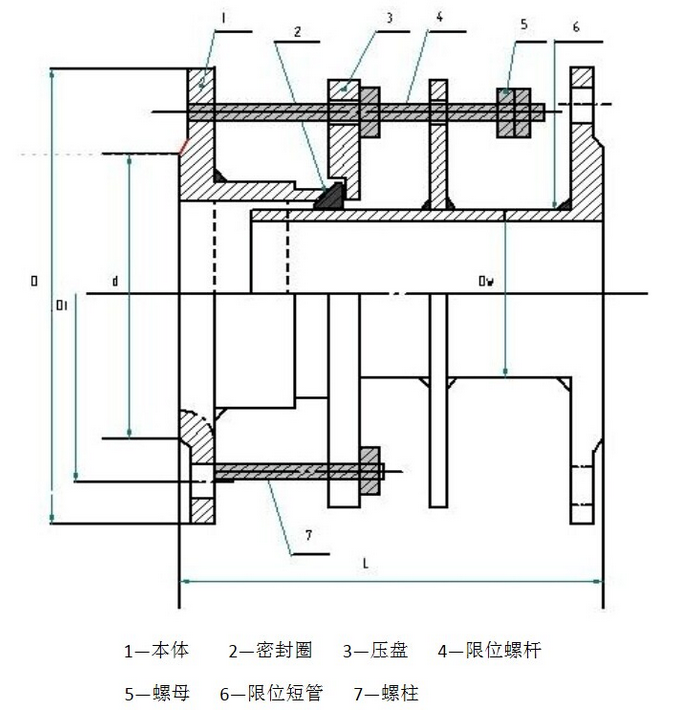
VSSJA-2(B2F)型雙法蘭限位伸縮接頭
標簽:該產品可按照客戶要求訂做,如需訂做請向客服提供您的參數表
華豐竭誠為您服務,熱線電話0371-64033589


產品介紹:
VSSJA-2(B2F)型雙法蘭限位伸縮接頭是在松套伸縮接頭原有性能的基礎上增設限位裝置,在大伸縮量處用雙螺母鎖定。管道在允許的伸縮量中可以自由伸縮,一旦超過其大伸縮量就起到限位,確保管道的安全運行,特別適用于有振動或有一定斜度及拐彎的管路中的連接。
安裝簡要說明:
VSSJA-2(B2F)型雙法蘭限位伸縮接頭適用于兩邊與法蘭連接,安裝時調整產品兩端與管道或法蘭的安裝長度,對角依次均勻擰緊壓蓋螺栓,再調整好限位螺母,這樣就能讓管道在伸縮量范圍內可以自由伸縮,鎖定伸縮量,確保管道的安全運行。
工作壓力:0.6Mpa 1.0MPa 1.6MPa 2.5Mpa
產品型號: DN50-DN3800
材 質:碳鋼Q235A 球磨鑄鐵 不銹鋼31
公稱 通徑 DN | 管子 外徑 DW | 長度 L | 伸縮量 | 法蘭連接尺寸 | |||||||
06MPa | 1.0MPa | ||||||||||
法蘭外徑D | 螺栓孔中心圓直徑K | 螺栓孔徑do | 螺栓n/個 | 法蘭外徑D | 螺栓孔中心圓直徑K | 螺栓孔徑do | 螺栓n/個 | ||||
65 | 76 | 340 | 25 | 160 | 130 | 14 | 4 | 185 | 145 | 18 | 4 |
80 | 89 | 190 | 150 | 18 | 200 | 160 | 8 | ||||
100 | 114 | 210 | 170 | 220 | 180 | ||||||
125 | 140 | 240 | 200 | 8 | 250 | 210 | |||||
150 | 168 | 265 | 225 | 285 | 240 | 22 | |||||
200 | 219 | 320 | 280 | 340 | 295 | ||||||
250 | 273 | 375 | 335 | 12 | 395 | 350 | 12 | ||||
300 | 325 | 370 | 32.5 | 440 | 395 | 445 | 400 | ||||
350 | 377 | 490 | 445 | 22 | 505 | 460 | 16 | ||||
400 | 426 | 540 | 495 | 16 | 565 | 515 | 26 | ||||
450 | 480 | 595 | 550 | 615 | 565 | 20 | |||||
500 | 530 | 645 | 600 | 20 | 670 | 620 | |||||
600 | 630 | 755 | 705 | 26 | 780 | 725 | 30 | ||||
700 | 720 | 860 | 810 | 24 | 895 | 840 | 24 | ||||
800 | 820 | 600 | 65 | 975 | 920 | 30 | 1015 | 950 | 33 | ||
900 | 920 | 1075 | 1020 | 1115 | 1050 | 28 | |||||
1000 | 1020 | 1175 | 1120 | 28 | 1230 | 1160 | 36 | ||||
1200 | 1220 | 1405 | 1340 | 33 | 32 | 1455 | 1380 | 39 | 32 | ||
1400 | 1420 | 640 | 1630 | 1560 | 36 | 36 | 1675 | 1590 | 42 | 36 | |
1600 | 1620 | 1830 | 1760 | 40 | 1915 | 1820 | 48 | 40 | |||
1800 | 1820 | 2045 | 1970 | 39 | 44 | 2115 | 2020 | 44 | |||
2000 | 2020 | 2265 | 2180 | 42 | 48 | 2325 | 2230 | 48 | |||
2200 | 2220 | 2475 | 2390 | 52 | 2550 | 2440 | 56 | 52 | |||
2400 | 2420 | 2685 | 2600 | 56 | 2760 | 2650 | 56 | ||||
2600 | 2620 | 710 | 70 | 2905 | 2810 | 48 | 60 | 2960 | 2850 | 60 | |
2800 | 2820 | 3115 | 3020 | 64 | 3180 | 3070 | 64 | ||||
3000 | 3020 | 3315 | 3220 | 68 | 3405 | 3290 | 60 | 68 | |||
3200 | 3220 | 3525 | 3430 | 72 | |
更多產品詳情可來電咨詢
聯系人:王先生 13783416000 魏女士 136837128680
版權所有:華豐管道 地址:河南省鞏義市西村開發區 服務熱線:0371-64033589 管理入口E-MAIL: 1696257948@qq.com 手機: 18638168566,13783416000
網站備案/許可證號: 豫ICP備11026537號-5
豫公網安備 41910102000259號 技術支持:鞏義開啟網絡
本網站支持新廣告法,為不影響客戶瀏覽,頁面區域用詞正在排查修改,本店所有頁面絕對化用詞和功能性用詞在此聲明前全部失效,不接受不妥協任何形式的絕對化用詞和功能性用詞賠付,希望各位消費者理解,職業打假人高抬貴手。 網站備案/許可證號: 豫ICP備11026537號-5
